施工図
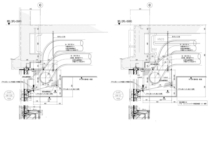
施工図の基本は平面図と断面図

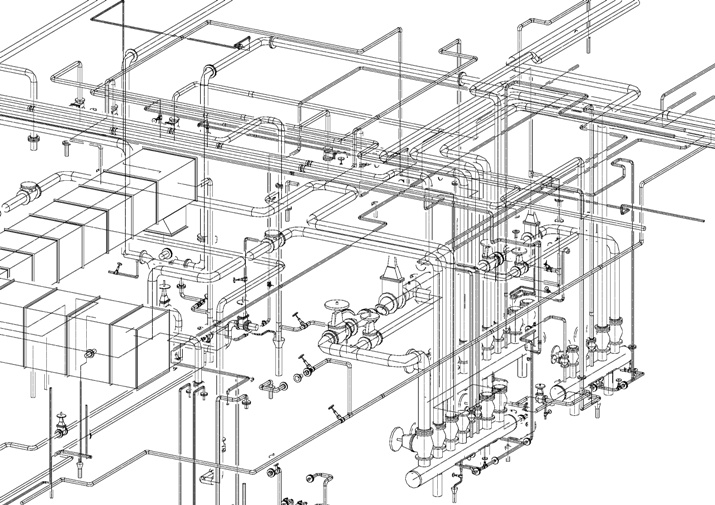
3Dによる目視でおさまりの検討
TFasにて作図後(一部別ソフトでレンダリング処理)3Dによるおさまり確認

機器の3Dデータの作成
メーカから提供されている2次元DXFデーターからリアルに3D表示可能な機器を作成
TFas、Rebroのどちらでも読み込み登録対応
機器・部品等の3Dデータのみの作図も承ります。
製作には2次元のDXFデータが必要になります。

施工図の基本は平面図と断面図

TFasにて作図後(一部別ソフトでレンダリング処理)3Dによるおさまり確認

メーカから提供されている2次元DXFデーターからリアルに3D表示可能な機器を作成
TFas、Rebroのどちらでも読み込み登録対応
機器・部品等の3Dデータのみの作図も承ります。
製作には2次元のDXFデータが必要になります。
